Villa independiente Ref. BKO8213

Argaka

€506,000 Plus IVA
Argaka Polis
Villa independiente Sobre plano
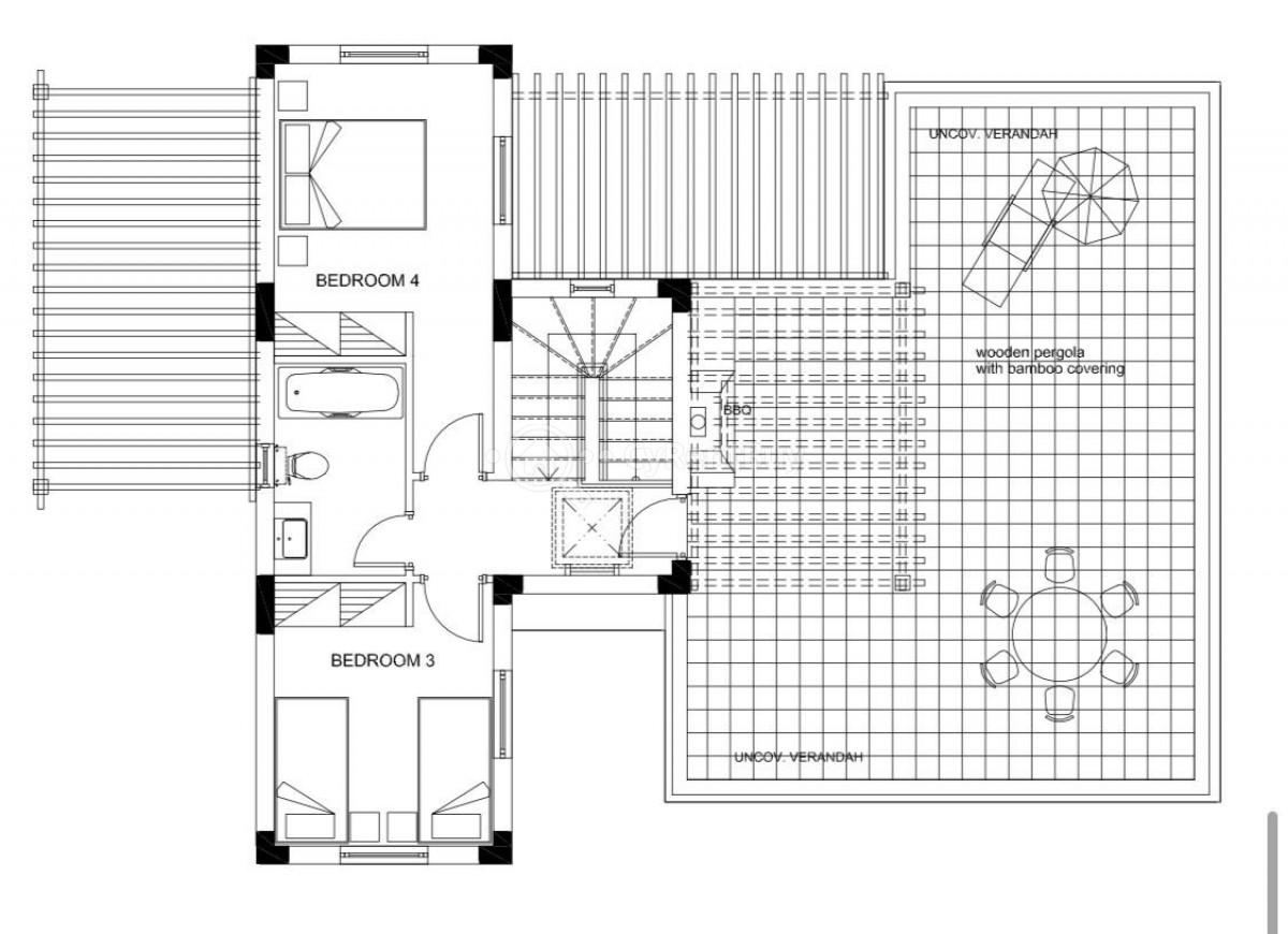
4 Dormitorios Dormitorios
160m² Cubierto
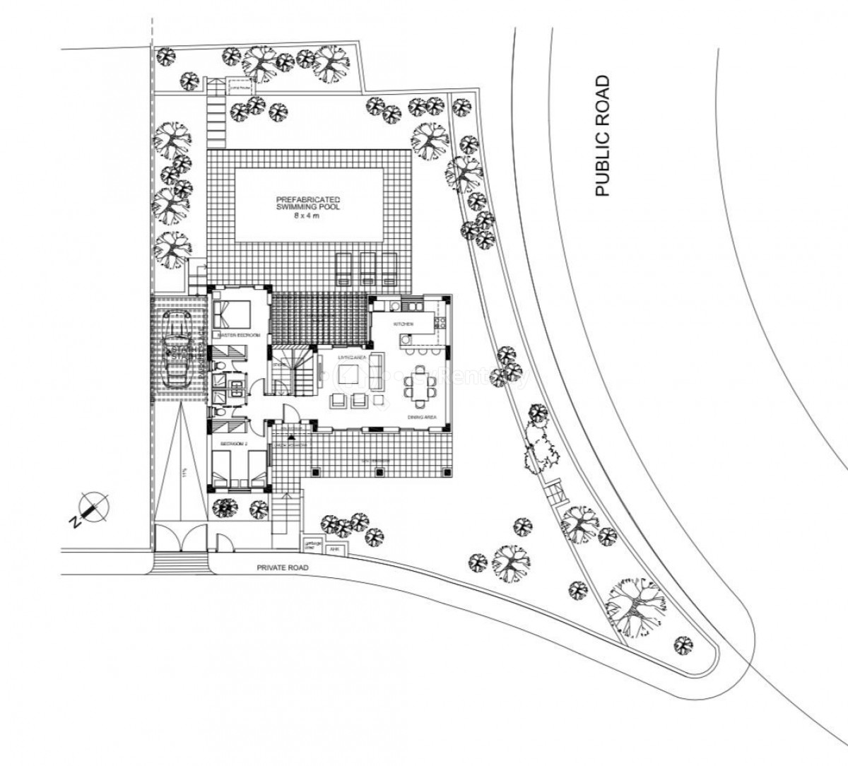
593m² Trama
Piscina Privada
Estacionamiento Descubierto
Amueblado Completamente
CONSULTA DE PROPIEDAD

Ubicada en el pintoresco pueblo de Argaka, a solo 2 km de la ciudad de Polis Chrysochous. El pueblo tiene una baja densidad de construcción, está situado a los pies del bosque de Pafos y a solo unos metros de las playas de arena.
Alojamiento de primera clase y amplias zonas de estar para toda la familia. Construida con los más altos estándares, cuenta con piscina privada, aparcamiento, cocina, amplio salón-comedor, dormitorios principales con baño en suite, aseo de invitados, diseño clásico atemporal, estilo moderno y vistas incomparables. Todo ello con fácil acceso por carretera a todos los servicios y lugares de interés.

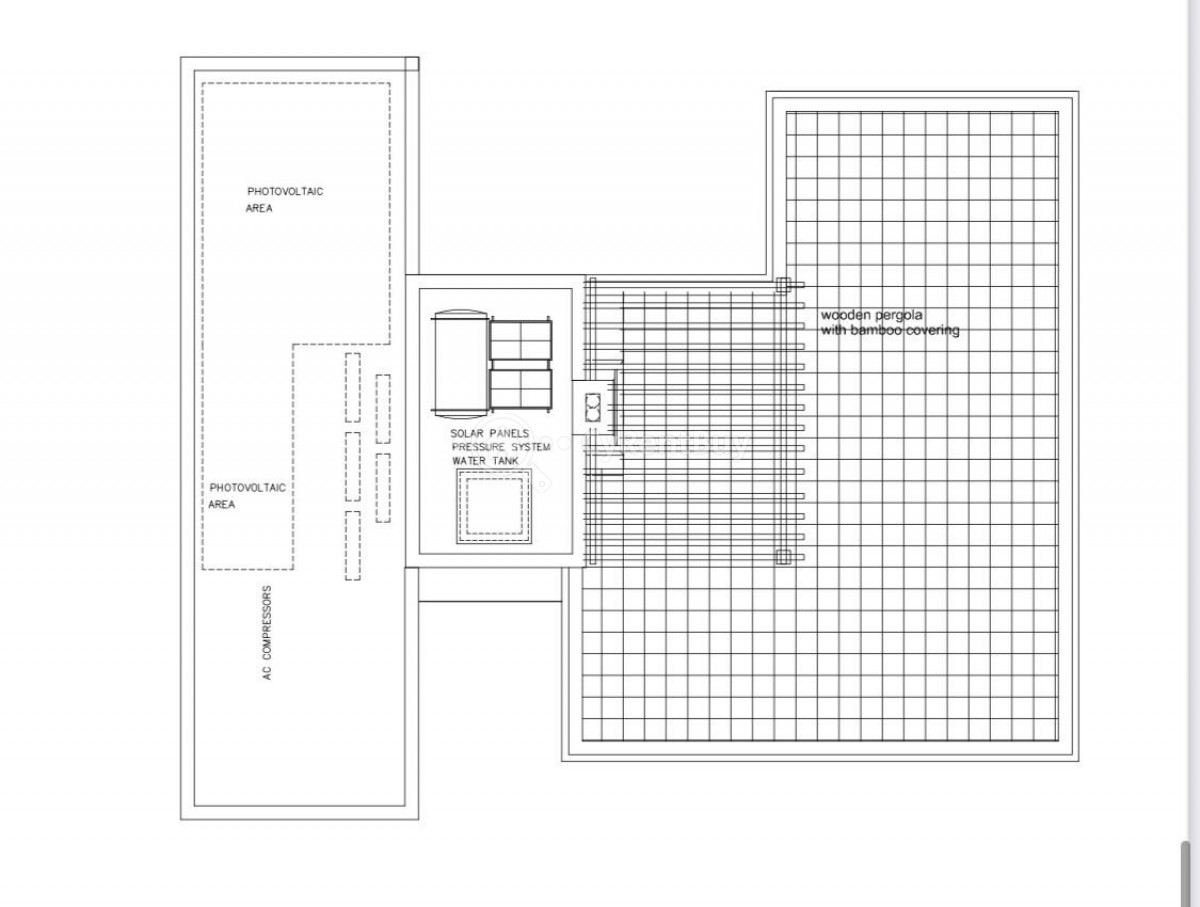
Tamaño de la parcela: 593,85 m² / Superficie total construida: 160,29 m²
Disponible en 18 meses – Precio más IVA

Aire acondicionado / Air Condition
Amueblado - Completamente
Cocina separada
Estacionamiento - Descubierto
Piscina - Privada
Plus IVA
¿No has encontrado lo que buscas?
ESTE SITIO WEB UTILIZA COOKIES
Utilizamos cookies para proporcionar la funcionalidad necesaria y brindarle la mejor experiencia en nuestro sitio web. Continúe si está satisfecho de recibir todas las cookies en este sitio. Lea nuestra Política de Cookies.